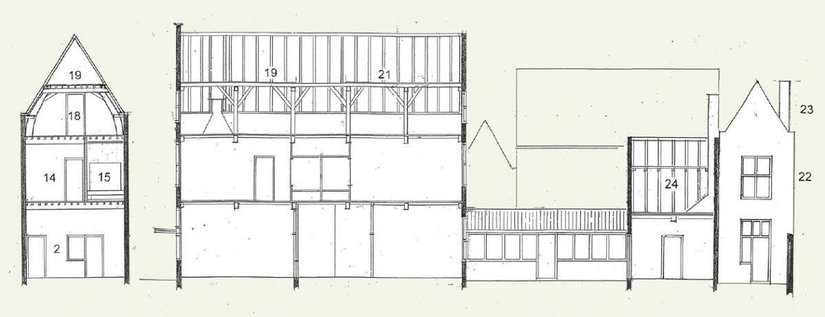
Top floor
18 Clothes attic (kleerzolder)
Above the front room was a room for storing clothing.
In the classic Dutch home from the Golden Age, the family lived above the shop and below the storage area. The inventory's articles list huge quantities of clothing, fabrics, and porcelain and metal objects in the house when Maria died. Where did they go in this tiny house? The top floor is the best candidate because of the few things left to note in the final articles -_ of the inventory.
Making Maria's inventory, the notaries listed the following in the clothes attic (op de kleersolder) on p. 33 (right sidebar; click to enlarge)
A trunk (koffer)
A painted chest (kist)
A polished chest
A small ditto
A large fire chest (vuurkist)
1 table that can be expanded (uijthaaltafel)
6 polished footwarmers (stoven)
1 old screen or partition (schut)
8 clothing racks (kleerstokken)
1 wicker basket with handles (vateben)
Some pots and pans
19 Front loft (voorvliering)
vliering Space above the kleerzolder.
Making Maria's inventory, the notaries listed the household goods that they found on page 33 (right; click to enlarge).
in the loft (op de vlieringh)
2 ladders
Some woodwork (houtwerk) and junk (rommelingh)
20 Back attic (achterzolder)
achterzolder This room could be used for sleeping. probably there was already a cupboardbed (2 children v. Helden)
Leeuwenhoek, placed a wineglass with water on the third floor to collect microbs, probably in the window of this 'zolder' at the quiet side with less dust.
De overige ruimte tot de achtergevel. Van Leeuwenhoek beschrijft hoe hij water opvangt op zijn plaats in een porcelijnen bord. Dat giet hij over in een wijnglas. Ook zet hij op de derde verdieping (gerekend met de begane grond als eerste verdieping) een porcelijnen bord in het open raam in de verwachting dat het water verrijkt wordt met microben uit de lucht.
Making Maria's inventory, the notaries listed the household goods that they found on page 33 (right; click to enlarge).
in the back attic (op de agtersolder)
1 large old-fashioned trunk with iron fittings (beslagen)
A painted chest (kisje)
An old-fashioned oak chest (eijke kist) and some Delt earthenware therein
An old porcelain? (pors)
A chicken coop (hoenderhok)
2 chairs
A small case (kasje) with 17 glasses and ?? (romers)
A small cage (kooijtje) and box (bakje)
A clothes rack (kleerrakje)
9 clothes rods (kleerstokken)
1 wicker basket with handles (vateben) with bottles
21 Back loft (achtervliering)
Making Maria's inventory, the notaries listed the household goods that they found on page 33 (right; click to enlarge).
in the back loft (op de agtererste vlieringh)
Some woodwork and junk
22 Back room (achterkamer)
achterkamer boven achterkeuken Space in the house at the Nieuwe straat
See 8 Back kitchen (achterkeuken).
Making Maria's inventory, the notaries listed the household goods that they found in the back room above the back kitchen (op de agterkamer boven de agterkeuken) on page 33 (right; click to enlarge).
2 chairs (stoelen)
1 painted table (geverfd tafeltje)
1 mirror (spiegel)
1 wicker basket with handles (vateben)
1 small desk for reading and writing (lessenaartje)
1 church stool (kerkstoeltje), 4 foot warmers (stoven)
1 barrel (tobbe)
1 glass door (glaase deur) ??
1 basket (mande)
1 board (plankje)
1 tea tray (theeblaatje)
1 table leaf (tafelblad)
Some basketwork (mandewerk)
Some junk (rommelingen)
23 Rear loft (achterstevliering)
Making Maria's inventory, the notaries listed the household goods that they found on page 33v (right; click to enlarge).
in the loft (op de vlieringh)
Some wood, some stones and junk
24 Attic (zolder)
Making Maria's inventory, the notaries listed the household goods that they found on page 33v (right; click to enlarge).
in the back attic (op de agtersolder)
Some peat (turff)
kast - case or cupboard
kerkstoel - church stool or chair. note the paintings of 17th century Delft churches, which have no pews or chairs. In some, women sat on stools during the sermon; the men remained standing. Learn more: Churches Without Chairs: How Christians Used to Worship
kist - chest
kleer = kleed. kleerzolder - An attic where clothing was washed or bleached and hung to dry on wooden rods.
koffer - trunk or carton
lessenaartje
pors
romers
tobbe - a wooden barrel wider at the top, used for bathing or laundry
vateben ben = (wicker) basket









